F300MF - Schwerlast-Entwässerungsrinnen - Civil F
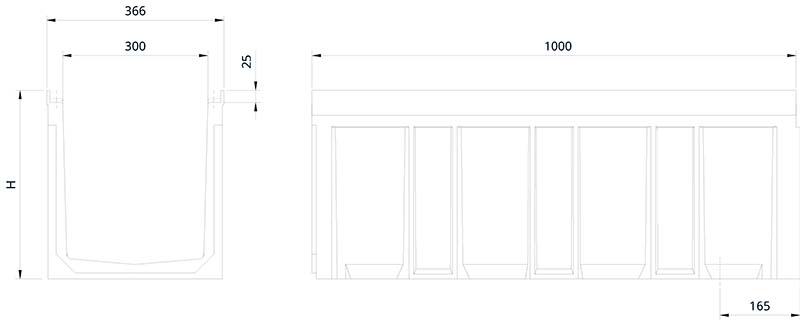
Linienentwässerungsrinne ULMA, Typ F300MF: Außenbreite 366 mm; Innenbreite 300 mm und Gesamthöhe zwischen 300 und 750 mm zur Aufnahme von Regenwasser in einem Meter Länge. Sichere Befestigung mit acht Schrauben pro laufender Meter; Kantenschutz aus verzinktem Stahl. Stufengefälle Möglichkeit.
Lieferbare Rinnen
| RINNENCODE |
L
(mm) |
Gesamthöhe
(mm) |
Breite (mm) | Auslaufdurchm. (mm) |
Hydraulikquerschnitt
(cm) |
Einheiten
(x pallet) |
Gewicht
(Kg) |
Qref
(l/s) |
||||
|---|---|---|---|---|---|---|---|---|---|---|---|---|
| Außen | Innen | Vert. | Horiz. | |||||||||
| F300MF000R | 1000mm | 300mm | 366mm | 300mm | 250mm | - | 725.0 | 15.0 | 54.34 | 46.4 | DWG | |
| F300MF00R | 1000mm | 390mm | 366mm | 300mm | 250mm | - | 975.0 | 9.0 | 62.02 | 77.5 | DWG | |
| F300MF10R | 1000mm | 440mm | 366mm | 300mm | 250mm | - | 1110.0 | 9.0 | 70.43 | 94.2 | DWG | |
| F300MF20R | 1000mm | 490mm | 366mm | 300mm | 250mm | - | 1255.0 | 9.0 | 75.97 | 113.8 | DWG | |
| F300MF60R | 1000mm | 600mm | 366mm | 300mm | - | - | 1525.0 | 6.0 | 96.14 | 163.8 | DWG | |
| F300MFH75R | 1000mm | 750mm | 394mm | 300mm | - | - | 1933.0 | 4.0 | 112.02 | 230.2 | DWG | |
Lieferbare Abdeckungen
| Material | Design | Belastungsklasse | Code | Befestigungen des KIT | ||
|---|---|---|---|---|---|---|
| Gusseisen | Stegrost | C-250 | FNX300FTCM | 8 Schrauben pro LM | DWG | |
| Gusseisen | Stegrost | D-400 | FNX300FTDM | 8 Schrauben pro LM | DWG | |
| Gusseisen | Geschlossen | D-400 | FC300FTDM | 8 Schrauben pro LM | DWG | |
| Gusseisen | Stegrost | F-900 | FNX300FTFM | 8 Schrauben pro LM | DWG | |
| Gusseisen | Geschlossen | F-900 | FC300FTFM | 8 Schrauben pro LM | DWG | |
| Verzinkter Stahl | Schlitzrahmen | D-400 | GRL300FOD | Ohne Schrauben | DWG | |
| EINLAUFKÄSTEN UND INSTALLATIONSDETAILS | ||
|---|---|---|
| Einlaufkasten AMF300 | DWG | |
| Einlaufkasten AMF300S + A300B | DWG | |
| Einlaufkasten F300MF60RS + UNI560 | DWG | |
| Einlaufkasten F300MF75RS + UNI560 | DWG | |
| Konstruktionsdetails. Einbau in Asphalt Längs zur Fahrtrichtung | DWG | |
| Konstruktionsdetails. Einbau in Asphalt Quer zur Fahrtrichtung | DWG | |
| Konstruktionsdetails. Einbau in Beton Längs zur Fahrtrichtung | DWG | |
| Konstruktionsdetails. Einbau in Beton Quer zur Fahrtrichtung | DWG | |