Caniveaux charges lourdes - Civil F

Caniveaux charges lourdes - Civil F

Caniveaux de drainage en béton polymère conçus pour les zones à forte charge adaptés à tous types d’exigences hydrauliques.

PRINCIPAUX AVANTAGES:

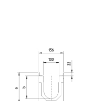
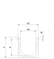
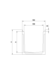
  • Différentes largeurs de caniveau:100-150-200-250-300-400
  • Profil en acier galvanisé ou en fonte ductile
  • Grilles en acier galvanisé ou en fonte ductile
  • Possibilité de pente intégrée, pente mixte ou pente en cascade
  • Système de fixation au moyen de 8 boulons par mètre linéaire
  • Classes de charge allant jusqu’à F900

APPLICATIONS:

  • Stations-service, aires de chargement et de déchargement des ports, entrepôts industriels, aéroports, parkings pour poids lourds, voies publiques.
F100
D-400 E-600 F-900
F150
D-400 E-600 F-900
F200
D-400 E-600 F-900
F250
C-250 D-400 F-900
F300
C-250 D-400 F-900

Projets

Caniveaux de drainage ULMA dans le magasin Lidl à Barcelona
Caniveaux de drainage ULMA dans le magasin Lidl à Barcelona

La chaîne de supermarchés Lidl choisit à nouveau nos systèmes F et MultiV+ pour son plus grand magasin en Espagne

Drainage au Port de Choisy-le-Roi, en bords de Seine
Drainage au Port de Choisy-le-Roi, en bords de Seine

Réduction des couts de la solution de drainage et de la mise en œuvre.

Comment éliminer les flaques et réduire le risque d’aquaplaning
Comment éliminer les flaques et réduire le risque d’aquaplaning

Station-Service et Parking de camions à Northampton, Royaume-Uni.

Nouvel envol pour l’aérodrome de Chartres
Nouvel envol pour l’aérodrome de Chartres

Décollons ensemble depuis l’aérodrome de Chartres-Métropole er sortons la tête des nuages!

Agrandissement de l'aéroport de Malaga
Agrandissement de l'aéroport de Malaga

Solutions de hauteur dans un projet de haut vol

Caniveaux de drainage fiables et de qualité
Caniveaux de drainage fiables et de qualité

Réaménagement de la station de tramway Jean Médecin à Nice (France)

Anti-talon, le design de grille adapté aux passants
Anti-talon, le design de grille adapté aux passants

S'il est possible de personnaliser, nous le faisons

Une place emblématique
Une place emblématique

La plus grande place piétonne de l'Union européenne

Péage de Sainte-Marie-de-Cuines
Péage de Sainte-Marie-de-Cuines

Drainage Haute Performance au cœur des Alpes (73)

Comment savoir quelle est le meilleur drainage pour votre projet?
Comment savoir quelle est le meilleur drainage pour votre projet?

Nouveau terminal de chargement et de transport dans le port de Barcelone

Caniveaux de drainage ULMA dans le port de Naples, Italie
Caniveaux de drainage ULMA dans le port de Naples, Italie

Un système complet de caniveaux a été installé dans le port de Naples, comprenant des caniveaux techniques (F900) avec 2.5% de pente intégrée, solution unique sur le marché.

Caniveaux de drainage ULMA à Haltern am See, Allemagne.
Caniveaux de drainage ULMA à Haltern am See, Allemagne.

Comment résoudre les problèmes de hauteur dans les raccordements entre les lignes de drainage et les égouts

Humaniser l'urbanisme
Humaniser l'urbanisme

Réaménagement du Boulevard Doctor Alemany (Cullera, Espagne)

Solution de drainage urbain ULMA dans la zone portuaire de Bandol
Solution de drainage urbain ULMA dans la zone portuaire de Bandol

Caniveaux de drainage pour travaux publics avec grille à fente

Nos catalogues

Caniveau à Fente KompaqSlot

Caniveau à Fente KompaqSlot

Télécharger
Catalogue technique

Catalogue technique

Télécharger