Rinnen für hohe Belastungen mit Höhenbegrenzung - Civil S
Entwässerungsrinnen aus Polymerbeton für hohe Belastungen mit Höhenbegrenzung
WICHTIGSTE VORTEILE
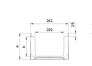
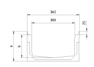
- Mehrere Rinnenbreiten: 150-200-250-300
- Profil aus verzinktem Stahl / duktilem Gusseisen / Edelstahl
- Abdeckungen aus verzinktem Stahl oder duktilem Gusseisen
- Befestigungssystem mit 8 Schrauben pro Laufmeter
- Belastungsklasse bis F900
ANWENDUNGEN:
- Tankstellen, Be- und Entladebereiche in Häfen, Industriehallen, Flughäfen, Parkplätze für Schwerfahrzeuge, öffentliche Straßen usw.
Projekte
Humanisierung des Städtebaus
Neugestaltung des Paseo Doctor Alemany (Cullera)
ULMA, Konstruktion und Ästhetik
Das Geheimnis hinter der Entwässerung in Kurven
Urbane Entwässerungslösung von ULMA für das Hafen- und Gewerbegebiet
Entwässerungsrinnen für Infrastrukturmaßnahmen mit Schlitzrinnen
Centro Canalejas: eine Zeitreise
Zwei Entwässerungssysteme für ein epochales Bauwerk